PROMOSI KOMPETENSI SISWA(PKS)
SEKOLAH MENENGAH KEJURUAN
TINGKAT NASIONAL KE XII - 2004
BIDANG LOMBA JOINERY DEPARTEMEN PENDIDIKAN NASIONAL DIREKTORAT JENDERAL PENDIDIKAN DASAR DAN MENENGAH DIREKTORAT PENDIDIKAN MENENGAH KEJURUAN
2004
SEMARANG, JUNI 2004
TRADE AREA: JOINERY
TRADE NUMBER:25
Project descriptions
Window frame and sash
Material: " Mahoni " wood
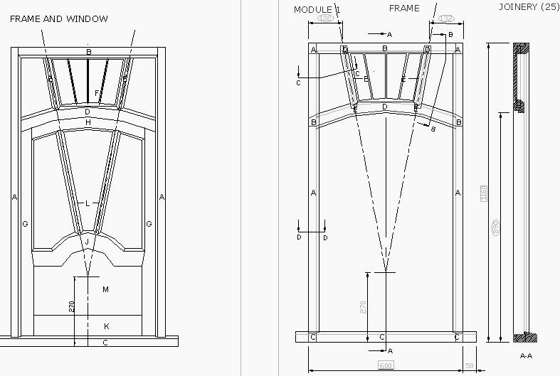
Module 1: Window frame, Main dimensions : ( 1160 * 600) mm
Module 2: Window sash, Main dimensions: (870 * 540) mm
![]()
![]()
![]()
Candidate task + Descriptions task
after finished must shown to the experts for making.
2. The project must be manufactured according to the drawings.
3. All internal joints must be marked by experts prior to assembly
4. You are allowed to use hand tools and electric power tool for the production of all components on the right procedures.
5. The surface of the components shall be sanded to receive a varnished finish
6. Every candidate must keep his own time. No stopping time is allowed expert in the case of an accident.
7. Your own measuring equipment must be available after you have completed your work to control the measurement.
8. The maximum working time is 23 hours
CONTENTS JOINERY (25)
Module 1 Frame
Page No
Front cover 1
Contents page 2
Instructions 3
General marking criteria 4
Working drawing (elevation) 5
Working drawing (details) 6
Material list 7
Material elevation 8
Detailed marking criteria 9
Elevation showing joints 10
Equipment required 11
INSTRUCTIONS JOINERY (25)
Module 1 Frame
1, Draw Full Size Elevation of Frame
2, Make Frame using materials supplied
3, all joints must be shown to the Jury for marking before final assembly
4, Machines may be used for processing all members
5, Tenons cut by hand must be so left
Alat-Alat Tangan Yang Harus Dibawa Peserta PKS XII 2004,
Bidang Lomba : Joinery
EQUIPTMENT FOR FRAME AND WINDOW JOINERY (25)
|
NO. |
NAME |
DESCRIPTION |
QTY |
|
SINGLE SPINDEL MOULDER |
WITH CUTTER SET (CHAMPER /BEVEL CUTTERS) , SPONING CUTTER, SOLID PROFIL CUTTER, CUTTER GROVE |
5 |
|
|
CIRCULAR SAW MACHINE WITH MULTIANGLE |
TILTING ARBOR SAW f 30MM MAX BLADE DIAMETER: 14" DADO HEAD BLADE 12" |
3 |
|
|
THICKNESS PLANER/HARD FEED PLANER |
TABLE: 700 X 700 MM, 5400 RPM TURNING ANGLE: 0 - 450 MAX PROCESSING THICKNESS: 80 MM |
2 |
|
|
BAND SAW |
WHEEL: f 660 MM, WIDTH: 45 MM, 20 MM, MAX PRCESSING TICKNESS: 250 MM |
5 |
|
|
HOLLOW CHISEL MORTISER + CHISEL BIT |
CHISEL: 6 - 20 MM (15MM) MAX PROCESSING: 150 - 170 MM 450 ANGLE, DRILL CHUCK: 13 MM |
5 |
|
|
SPINDLE SANDER (Vertical) |
PLATE: 870 - 710 MM 1200 - 2000 RPM MAIN SPINDLE DIA.1 |
5 |
|
|
DUST EXTRACTION SYSTEM |
REGULAR PRESSURE: 250 MM/AQ WIND SPEED: 35 M/SEC |
5 |
|
|
BENCH DRILLING MACHINE + DRILLING MACHINE |
- CAP.OF CHUCK: 13 MM - SPIRAL WITH SPUR BITS: 10, 10.6 AND 12 mm |
4 |
|
|
HORINZONTAL BORING + BORING BIT |
With spiral Spur bit 10,5 mm |
5 |
|
|
BENCH GRINDER |
With Planer Sharpening Attachment |
2 |
|
|
RADIAL ARMS SAW |
f 14", Dado Head 12", Tenon Head 10" |
5 |
|
|
DISK SENDER MACHINE |
f 30mm, Complete with Scroll Paper Grit 100 |
5 |
|
|
SINGLE SURFACE PLANER |
Ukuran 14" |
2 |
|
|
COMPRESSOR |
7,5 PK |
1 |
TOOLS
|
NO. |
NAME |
DESCRIPTION |
QTY |
|
CARPENTER’S WORKBENCH |
2000 x 900 x 850mm; with lateral vice/bench vice |
10 |
|
|
WORKTABLE |
1000 x 1000 x 900mm; Wood work surface for drawing |
10 |
|
|
CHAIR |
Adjustable, no back support, on whells |
10 |
|
|
DRAWING BOARD |
1500 mm x 1200 mm x 9 mm, on whells |
10 |
|
|
F CLAMP |
300 mm, 900 mm, 600 mm, 1500 mm (mix) |
600 |
|
|
T-SQUARE |
1.5 M |
10 |
|
|
SAFETY GLASSES |
TRANPARENCY |
10 |
|
|
EARPLUG |
TO PROTECT EARS |
20 |
|
|
TAPE MEASURING |
300 MM (STANLEY) |
15 |
|
|
FRAME SQUARE |
200 MM |
10 |
|
|
TRAMEL POINT |
STANLEY STANDARD, SINGLE PIN |
5 |
|
|
ELECTRIC HAND DRILL |
VARIABLE SPEED CHUCK CAP 10 MM, MAKITA 6410 |
5 |
|
|
ORBITAL SANDER |
- SOLE SIZE: 750 x 750 MM - INDUCTION MOTOR 220V, MAKITA BO 4540 |
5 |
|
|
ELECTRIC HAND ROUTER |
- 2700 RPM, MOTOE 220V WITH ROUTER CUTTERS - CHAMPER PROFILE SIZE: 13MM - 300 STRAIGHT ¯ 1/2" & 1/4" |
5 |
|
|
SMOOTH PLANE |
STANDARD SIZE, MEAL TYPE |
5 |
|
|
SQUARE |
COMBINATION |
10 |
|
|
SPOKE SHAVE |
FLOAT BOTTOM |
10 |
|
|
MALL CIRCLE |
CRICLE SABLON 2MM - 40 MM |
10 |
|
|
PROTECTOR/BUSUR DERAJAT |
0 - 1800, STAEDLER |
10 |
|
|
STAND DRIILING MESIN |
75 X 75 X 80 |
6 |
|
|
COMPRESSOR |
1 |
TOOLS PREPARE BY COMPETITOR
|
NO. |
NAME |
DESCRIPTION |
QTY |
|
BACK SAW |
18 - 24 TEETH PER INCHI |
||
|
FIRMER CHISEL |
WIDTH: 10, 12, 15 MM |
||
|
PARING CHISEL |
WIDTH: 10, 12, 15, 20 MM, 25 MM |
||
|
RULER |
MADE OF STEEL, LENGTH: 1000 MM GRADE, STRAIGHT |
||
|
MALLER |
MADE OF WOOD OR PASTIC |
||
|
HAMMER |
APPROX: 250 GRAMS |
||
|
BAR CLAMP |
200 CM LONG 120 CM LONG MADE OF STEEL 2 PCS/SET |
||
|
TRAMEL POINT |
STANLEY STAANDARD SINGLE PIN |
||
|
BRAD AWL |
POINTED WITH WORDEN HANDLE |
||
|
MARKING GAUGE |
STANLEY STANDARD |
||
|
STEEL COMPASSES |
WITH ADJUSTING LEVER FOR DEGREE MARKING |
||
|
SLIDING BEVEL SQUARE |
STANLEY STANDARD |
||
|
T - SQUARE |
1000 MM LONG MADE OF PLASTIC |
||
|
SET SQUARE |
ANGLE: 300, 600 GOOD QUALITY |
FACILITIES
|
NO. |
NAME |
DESCRIPTION |
QTY |
|
ELECTRICAL OUTLET |
220 V/15A, 1 PHASE |
31 |
|
|
ELECTRICAL OUTLET |
380 V/30A, 3 PHASE |
20 |
|
|
EXTENTION CABLE |
30 M LONG, 4 SOCKETS FITTING |
5 |
MATERIAL LIST JOINERY (25)
Module 1 Frame
MATERIAL REQUIRED PER COMPETITOR
|
Member |
Qty |
Length |
Width |
Thickness |
|
A |
2 |
1200 |
60 |
40 |
|
B |
1 |
750 |
60 |
40 |
|
C |
1 |
750 |
90 |
40 |
|
D |
1 |
700 |
140 |
40 |
|
E |
1 |
600 |
30 |
40 |
|
F |
4 |
340 |
150 |
14 |
two pieces
TIMBER SPECIFICATION – Mahoni Wood
PLYWOOD
1 - 1300 x 800 x 10 mm Setting out board 1- Straight edge 1200 x 70 x 12 mm
100 ml - PVA Adhesive
MATERIAL JOINERY (25)
Module I Frame
MARKING SCHEME TIME 10 HOURS JOINERY (25)
Module 1 Frame
|
Marks |
||||
|
A |
Drawing |
|||
|
Linework |
2.0 |
|||
|
Joint Details |
2.0 |
|||
|
2.0 |
|||
|
Cleanliness |
1.0 |
|||
|
Section |
3.0 |
10 |
||
|
B |
Interior Joints |
C Exterior Joints |
||
|
A 2 x 2 4 |
A 2 x 2.5 5 |
|||
|
B 2 x 2 4 |
B 2 x 2.5 5 |
|||
|
C 2 x 3 6 |
C 2 x 3.5 7 |
|||
|
D 2 x 1. 5 3 |
D 2 x 2 4 |
|||
|
E 2 x 1. 5 3 |
E 2 x 2. 0 4 |
|||
|
|
20 |
25 |
45 |
|
|
D |
Finish & Appearance |
|||
|
Twist of frame |
2.0 |
|||
|
Twist of window |
2.0 |
|||
|
Fit of panel |
1.0 |
|||
|
Surface finish to frame |
3.0 |
|||
|
Surface finish to window |
3.0 |
|||
|
Edges of frame and window |
2.0 |
|||
|
Curved shapes |
2.0 |
|||
|
Square ness of frame |
1.0 |
|||
|
Fit of window to frame |
4.0 |
20 |
||
|
E |
Conformity |
|||
|
Bars 2 x 1.5 |
3 |
|||
|
No fixings used 2 |
2 |
|||
|
5 |
||||
|
F |
Measurement |
Tolerance + or – 1 ½ mm |
||
|
Main dimension height 1160 |
4.0 |
|||
|
Main dimension width 600 |
4.0 |
|||
|
Secondary dimension height 870 |
4.0 |
|||
|
Secondary dimension position of bar 2 x 1.5 |
3.0 |
15 |
||
|
F |
Utilisation of Material |
2 marks will be deducted for each component replaced |
|
|
|
1 mark will be deducted for each panel or bar replaced |
5 |
|||
|
TOTAL |
100 |
|||
MATERIAL LIST JOINERY (25)
Module 2 WINDOW
MATERIAL REQUIRED PER COMPETITOR
|
Member |
|
Length |
|
Thickness |
|
G |
|
900 |
|
40 |
|
H |
|
600 |
|
40 |
|
J |
|
600 |
|
40 |
|
K |
|
600 |
|
40 |
|
M |
|
460 |
|
14 |
|
L |
|
1000 |
|
40 |
TIMBER SPECIFICATION – Mahoni Wood
PLYWOOD
1 - 1300 x 800 x 9mm Setting out board 1- Straight edge 1200 x 70 x 12
100 ml - PVA Adhesive

