ConTextos 1, Estudios e investigaciones en Arqueología Peruana                     Regresar
 
UNA APROXIMACIÓN ACERCA DE LA PIRÁMIDE Nº 5 DEL SANTUARIO DE PACHACAMAC Y LA SOCIEDAD YCHSMA EN LAS FASES TARDÍAS (ESTUDIOS PRELIMINRES)

Juan Carlos Espejo Cornejo

Sumilla: El presente artículo está dedicado a la discusión sobre las distintas propuestas acerca de las estructuras llamadas Pirámides con Rampa aquí trato de demostrar que éstas edificaciones se han construido a fines del Periodo Intermedio Tardío (900 d.C. - 1470 d.C.) utilizándose aun durante los primeros momentos del Periodo Horizonte Tardío (1470 d.C.- 1532 d.C.). Se plantea que una de las funciones básicas de las Pirámides con Rampa sería la ceremonial, asociada con actividades de producción vinculadas al aspecto religioso.

Summary: This paper is dedicated to discuss the different proposals about de structures called Pyramids with Ramp and treated to demonstrate that this buildings have been built at the end of the Late Intermediate Period (900 A.D. - 1532 A.D.) and being utilized even during the first moments of the Late Horizon Period (1470 d.C.- 1532 d.C.). The author point out that one of the basic functions of the Pyramids with Ramp would be the ceremonial, associate with productive activities linked to the religious aspect.

Palabras clave: Pachacamac, Ychsma, Pirámide con Rampa nº 5, Período Intermedio Tardío

Introducción:

En el sitio arqueológico de Pachacamac se evidencia una gran cantidad de edificaciones conocidas como Pirámides con Rampa (PCR) sobre las cuales se han propuesto una serie de interpretaciones relacionadas con su funcionalidad (Bueno, 1982; Dolorier, 1998, Eeckhout 1995, / 2004b; Jiménez, 1985; Jiménez y Bueno, 1970; Paredes, 1988; Paredes y Franco 1987; Ramos, 1999, Shimada, 1991). Este tipo de edificaciones son muy características de la costa central en los periodos tardíos.1

Los edificios morfológicamente tienen algunas semejanzas y diferencias; si bien es cierto, estas construcciones corresponden a un mismo patrón arquitectónico. Este patrón es descrito de distintas maneras por cada autor (Bueno, 1982; Dolorier, 1998, Eeckhout 2000; Jiménez, 1985; Paredes, 1988; Ramos, 1999, Shimada, 1991); pero es Paredes (1988) quien menciona cuales son las características que permitirían identificar a las Pirámides con Rampa y distinguirlas de otras edificaciones. En base a los trabajos que se realizaron en la PCR Nº 2 y su comparación con la PCR Nº 1, Paredes menciona una serie de elementos arquitectónicos y sectores diagnósticos, como: 1) un ingreso principal; 2) patio delantero; 3) rampas eje con orientación variable; 4) volumen piramidal; 5) depósitos de planta rectangular o cuadrada; 6) edificios y volúmenes conexos; 7) canchas y cercados grandes; y 8) caminos epimurales anchos y/o angostos (Paredes, 1988: 44-57; Paredes y Franco, 1987: 5 y 7). Sin embargo, los componentes arquitectónicos que establece Paredes son demasiado estrictos (Eeckhout, 2000: 225 y 226), es por eso que se busca un concepto más simple.


Figura 1: Sitios arqueológicos con Pirámides con Rampa en la provincia de Lima

Las Pirámides con Rampa2 están conformadas por un patio delantero (espacio amplio) el cual esta cercado y delimitado por muros, una rampa frontal que conecta el patio con el volumen arquitectónico (espacio restringido), compuesto por una serie de niveles o terrazas, algunas formando en la cima una planta en "U" cuya orientación es hacia el patio delantero y un área de depósitos.

Las otras características que menciona Paredes tales como: un ingreso principal, edificios y volúmenes conexos; canchas y cercados grandes; y caminos epimurales anchos y/o angostos; pueden ser usadas en los casos donde la relación funcional, entre la estructura y los elementos arquitectónicos, es evidente.

En los valles del Rímac y Lurín se han registrado varias pirámides con rampa, aunque con características particulares para cada sitio. En el Rímac se registran los sitios de: Armatambo, Maranga (Parque de las Leyendas) y Huaquerones (Bueno, 1978; Díaz, 2004, Díaz y Vallejo 2003a, 2003b y Villacorta, 2004;). En el valle de Lurín se registran los sitios de: Pampa de las Flores, Tijerales B y en Pachacamac(Fig., 1); siendo, por supuesto, este último sitio el mas investigado de todos (Bueno 1974-75, 1979 y 1982; Dolorier 1998; Eeckhout, 1995, / 2004b; Franco, 1993, 1998 y 2004; Jiménez, 1964-65 y 1985; Jiménez y Bueno 1970; Paredes 1988; Paredes y Franco, 1987; Ramos, 1999; Shimada, 1991; Shimada, et al, 2004; y Uhle, 2003[1903]).

Este trabajo se centrará en el análisis de las edificaciones conocidas como Pirámide con Rampa (PCR)3 del Santuario de Pachacamac, y más específicamente en la denominada PCR nº 5.4 (Fig. 2 y 3)


Ver ampliación

El Santuario de Pachacamac (Fig. 4) es uno de los sitios arqueológicos más importantes del área andina y de la costa central, se encuentra ubicado en el valle bajo del río Lurín, en la margen derecha y muy cerca a la desembocadura del mismo río. Es un extenso y denso asentamiento emplazado entre el río Lurín y la Tablada de Lurín, presentado una larga y abundante evidencia del desarrollo histórico-social del hombre en esta zona. El sitio de Pachacamac se compone de tres sectores principales, delimitados todos por murallas perimétricas; el Sector I está comprendido por el Templo Viejo, el Templo Pintado, el Templo del Sol, ellos delimitados con la primera muralla; el Sector II está compuesto en su mayoría por las PCR y otras edificaciones de tipo residencial y depósitos, siendo delimitada por la Segunda Muralla, el Sector III, donde la densidad de arquitectura monumental es menor a comparación de los anteriores sectores, esta delimitado por la tercera y cuarta muralla. (Bueno, 1982; Eeckhout, 1999a y 2003; y Shimada, 2004)

Este trabajo pretende dar una propuesta basada en los datos arqueológicos recolectados del sitio y cotejados con las últimas evidencias; planteando la hipótesis central que la construcción, la funcionalidad y el uso de la Pirámide con Rampa Nº 5 evidencia un ordenamiento ortogonal en relación a las pirámides cercanas a ella (PCR Nº 6, Nº 7 y Nº 8), las que evidencian una planificación regida por las calles y murallas, las cuales están asociados a las últimas ocupaciones del Santuario de Pachacamac.

Pachacamac, tal cual lo apreciamos en la actualidad, representaría las ocupaciones más tardías, datadas aproximadamente entre de 1350 d.C. y 1532 d.C.5 Tomando de base las evidencias arqueológicas, tales como: los fechados de radiocarbono, la relación de los espacios y el material cerámico, se evidencia que un gran número de las edificaciones visibles y en especial las PCR, estarían asociadas a la época Ychsma Tardío y sus fases respectivas A y B. (Vallejo, 1998 y 2004). La PCR nº 5 se distingue de las demás pirámides, por su ubicación dentro del sector III cerca del acceso de la segunda muralla y por la relación con las PCR (Nº 6, Nº 7 y Nº 8) cercanas a este edificio.


Figura 2: Foto aérea de Pachacamac (foto SAN)

El procesamiento de los datos se centró en la descripción de la PCR nº 5 y la comparación con otras edificaciones semejantes; para ello se tomó en cuenta las últimas propuestas planteadas para la secuencia del material cerámico (Díaz y Vallejo, 2003; Feltham y Eeckhout, 2004; y Vallejo, 1998 y 2004)6 las cuales se compararon con anteriores trabajos de excavación; el análisis de los componentes morfológicos de las edificaciones y la medida de los adobes, ello para verificar si la PCR nº 5 pertenecería a una ocupación tardía del Santuario de Pachacamac. Toda esta información esclarece algunas dudas y plantea nuevas problemáticas para el Santuario de Pachacamac.

Con respecto al Ychsma Tardío, Vallejo.(1998 y 2004).7 propone una secuenca para el estilo Ichsma que se compone de tres épocas: Temprano, Medio y Tardío, cada una dividida en A y B. El Ychsma Tardío mostraría cambios estilísticos y tecnológicos muy importantes en la Sociedad.

Ychsma Tardío A: esta fase se inicia a fines del Periodo Intermedio Tardío (PIT) y se compone de una presencia importante de tipos cerámicos conocido como cara-gollete (en la fase anterior Ychsma Medio B aparecen pero en menor cantidad y poco decorados), los motivos de las fases anteriores se mantienen pero aparecen nuevas formas como las cuencos carenados, moldes y formas con bases planas.

Ychsma Tardío B: se inicia en el Horizonte Tardío (HT) y mantiene el desarrollo anterior, las vasijas domesticas usan bandas o aplicaciones de serpientes; también hay una gran presencia de figurinas hechas con molde. Aparecen técnicas, formas y estilos cuzqueños (aríbalos, platos, vasos) y foráneos (Inca/Chimu) pero con materiales locales.


Figura 3: Isometría de la PCR nº 5

Para Feltham y Eeckhout, en base a los fechados de radiocarbono que se obtuvieron de los materiales hallados en la PCR nº 3, esta época empezaría desde fines del siglo XIV hasta las primeras décadas de la Colonia. Para ellos la dificultad esta en sí: “¿el Ychsma Tardío es fruto de la conquista Inca y el aumento de contactos con otras regiones o es algo que iba evolucionando lentamente antes del contacto de la conquista? o sea ¿es anterior o no a la conquista Inca?” (Feltham y Eeckhout, 2004: 650); si bien no niegan la existencia de un Ychsma Tardío antes del Incanato, piensan que esta época es más fruto de la conquista cuzqueña, porque tiene elementos, estilos y técnicas asociadas a lo Inca y a lo Chimu, además dudan sobre la fecha de 1470 que Rowe sugirió para los comienzos del Horizonte Tardío en la costa central; sugiriendo probablemente la llegada de los Incas antes de 1420. Para ellos la evolución de la cerámica Ychsma es: “… un proceso lento, y los rasgos que lo definen no cambiaron repentinamente. Es lógico que muchas formas y métodos de decoración del Ychsma Medio hayan continuado hasta las últimas décadas del siglo catorce y principios del siglo quince. Lo mismo pasó después de la conquista Inca o sea que continuaron fabricando la misma cerámica de antes y poco a poco adoptaron nuevas formas, motivos decorativos, colores etc. Al mismo tiempo,…, queremos saber si hay una diferencia entre lo que fabricaban a fines del Intermedio Tardío y lo que fabricaban después de la llegada de la llegada de los incas a la costa central” (Feltham y Eeckhout, 2004: 669).

Las ultimas propuestas sobre el material cerámico han evidenciado la necesidad de revisar todos los componentes culturales que están formando parte de la sociedad Ychsma, por lo cual se eligió la arquitectura y especialmente a las PCR por ser uno de los componentes mas investigados, registrándose datos importantes. Se han planteado una serie de propuesta sobre las PCR; además cada cierto tiempo se van planteando nuevos enfoques que exigen una cada vez mayor revisión de datos obtenidos a partir de las excavaciones en Pachacamac y otras áreas donde se desarrolló la sociedad Ychsma.

La Pirámide con Rampa nº 5:

La PCR nº 5 se encuentra ubicada fuera de la zona céntrica del Santuario de Pachacamac, dentro del sector III, hacia el lado norte del santuario y cerca a la entrada de la segunda muralla, entre la PCR nº 8 y nº 6. Su orientación es hacia el noreste, con un área aproximada de 5000 m2, esta pirámide se encuentra en paralelo a la PCR nº 6, separadas por un pasaje longitudinal de 5.5 m. de ancho, el cual se denomina calle Segunda Muralla (Dolorier, 1998). Para una mejor comprensión se numeraron sus distintos componentes arquitectónicos (ver plano Fig. 5).


Figura 5: 1.- Ingreso; 2, 3.- Corredor; 4.- Primer nivel del patio; 5.- Segundo nivel del patio; 6.- Rampa; 7, 8.- Primer nivel de la plataforma; 9.- Segundo nivel de la plataforma; 10, 11, 12.- Recintos en forma de «U» en la cima; 13, 14, 15, 16, 17.- Camino epimural; 18, 19, 20, 21, 22, 23, 24, 25.- Depósitos.

El acceso.- El ingreso (1) se encuentra en dirección suroeste, tiene una abertura de 3 m. aproximadamente, que en la actualidad está completamente cubierto de arena. (Fig. 6)


Figura 6: Acceso Principal de la Pirámide con Rampa nº 5. (Foto: Juan Carlos Espejo)

Al patio se accede a través de dos corredores (2 y 3) (Fig. 5), que tienen una orientación este y norte respectivamente, y un largo de 30 m. c/u, aprox. Estos corredores están definidos por cinco muros, de estos, dos forman parte de los muros que delimitan el patio y se ubican hacia el norte. El muro sur del primer corredor tiene un largo de 31 m., un ancho de 1.8 m. y una altura de 3 m. aprox., este ha sufrido el derrumbe de parte de su estructura. El muro este del segundo corredor, al parecer estaría conformado por dos muros o tramos. El primer tramo, se conecta con el muro sur del primer corredor y tiene un largo de 12.5 m., un ancho de 3 m. y una altura de 2.5 m., el segundo tramo tiene un largo 18.4 m. y un ancho de 1 m. aprox.; la altura es difícil de determinar debido que está completamente cubierto, sólo pudiéndose apreciar su contorno, el muro norte del segundo corredor tiene un largo de 3 m. y un ancho de 1 m.; la altura del muro es difícil de determinar por estar igualmente cubierto de arena(Fig. 7).


Figura 7: Segundo Corredor de la Pirámide con Rampa nº 5. (Foto: Juan Carlos Espejo)

El patio principal.- Presenta un área de 2,275 m2 (Fig. 8)y está compuesto de dos niveles: el primer nivel (4) (Fig. 5) es el más próximo a la entrada del patio; el segundo nivel (5) (Fig. 5) es el más alto y está próximo a la rampa y al volumen piramidal. Se evidencia en su superficie material arqueológico; en el primer nivel es clara la aglomeración de moluscos, en el segundo algunas aglomeraciones de basura arqueológica, compuesta en su mayoría por fragmentos de cerámica, varios de ellos de clara afiliación Inca e Ychsma Tardío, también se aprecian batanes de piedra, y distintos artefactos como pulidores y percutores de piedra.(Fig. 9, 10, 11, 12, 13, 14 y 15) Estas aglomeraciones de material arqueológico, también se encuentra sobre de los muros cubiertos de arena. Los materiales en la superficie estarían vinculados a la última ocupación de este edificio, probablemente asociados a los llamados “campamentos de los peregrinos” que menciona Eeckhout (2004a).

Este patio está cercado por cuatro muros, los cuales están afectados por el tiempo y por la acción del hombre. El muro este, se encuentra en su mayor parte cubierto de arena y la unión con el muro norte fue destruída por la construcción de una carretera moderna y; debió tener un largo de 40 m. y un ancho de de1.5 m. El muro sur, se encuentra dañado producto del derrumbe de unos de sus paños, tiene un largo de 69 m. un ancho de 2.5 m. y una altura de 3.5 m.; en su base se evidencia el uso de piedras canteadas irregulares, este muro a diferencia de los demás es el único que nos brinda una idea de la altura que probablemente debieron tener los demás muros. El muro oeste esta formado por un pequeño tramo de muro que conecta el sector suroeste con el volumen y la cara este del volúmen del edificio tiene un largo de 33.5 m., pero el ancho es difícil de determinar por estar igualmente cubierto de arena, pero el muro que une el volumen del edificio con el sector sur tiene un largo de 4 m. y un ancho de 2.5 m. aproximadamente. El muro norte está muy afectado debido a derrumbes y además sufrió la destrucción de parte de su estructura, producto al parecer de la construcción de la antigua carretera Panamericana; debió tener un largo 66.5 m. y un ancho de 2 m., quedando del muro 38 m. de largo apenas visible en superficie.


Figura 8: Patio Principal de la Pirámide con Rampa nº 5. (Foto: Juan Carlos Espejo)

La conexión entre el patio y la cima del volumen piramidal se hace por medio de una rampa (6) (Fig. 3,5), la cual conecta el patio con el volumen de la plataformas, tiene una longitud de 8 m. de largo, 2.5 m. de ancho y una elevación de 2.5 m.; y la orientación es noroeste.

El volumen piramidal.- Se encuentra en dirección oeste de todo el complejo arquitectónico, este volumen se compone de una serie de niveles (7, 8 y 9) (Fig. 5); en el último nivel se evidencian recintos o banquetas (10, 11 y 12) (Fig. 5) las que forma una “U” en la cima, la cual tiene la abertura orientada en dirección de la rampa y el patio (noreste), en estos niveles se evidencia gran cantidad de coprolitos de ganado caprino, los que forman capas gruesas de este elemento, posiblemente asociadas a los chivatos de épocas recientes. (Fig. 16) Los niveles 7 y 9 parecieran estar conectadas a través de una rampa que está cubierta.Eeckhout, en sus últimas excavaciones en el sitio en el marco del Proyecto Ychsma, menciona que esta área sufrió cambios en su tradicional equipamiento de banquetas y sus accesos posteriores en la plataforma. Para él dichos cambios se habrían producido en la época del incanato, revelando un interés particular de los incas por esta pirámide. (Eeckhout, 2004: 407)

Eeckhout, en sus últimas excavaciones en el sitio en el marco del Proyecto Ychsma, menciona que esta área sufrió cambios en su tradicional equipamiento de banquetas y sus accesos posteriores en la plataforma. Para él dichos cambios se habrían producido en la época del incanato, revelando un interés particular de los incas por esta pirámide. (Eeckhout, 2004: 407)


Figura 9: Material cerámico de superficie proveniente del Patio Principal de la Pirámide con Rampa nº 5. (Foto: Juan Carlos Espejo)

Los depósitos.- Se encuentran ubicado al sur/este del volumen (Fig. 17), formado por 8 depósitos de formas cuadrangulares o rectangulares de distintos tamaños (18, 19, 20, 21, 22, 23, 24 y 25) (Fig.5); el más grande de estos depósitos es el nº 20 que tiene un largo de 10.5 m., un ancho de 6 m. y de alto 2.5 m. aprox., de los siguientes en tamaño son el nº 18 con un largo de 14.5 m. y un ancho de 2 m. aproximadamente; y el deposito (25) (Fig. 5) con un largo de 10.2 m. y un ancho de 2 metros aproximadamente y los demás tienen un tamaño similar, el largo entre 2 y 2.4 m. y de ancho 2 m. aproximadamente, respecto a la altura es difícil de determinar, con excepción del depósito grande el (20) (Fig. 5) por que los depósitos están casi cubiertos de arena. Estos depósitos están delimitando por las cabeceras de los muros que sirven como caminos epimurales (13, 14, 15, 16 y 17), de los muros el 16 nos brinda una altura de 2.5 m. El material cerámico e superficie también está asociado al Ychsma Tardío. (Fig. 18, 19 y 20)

El acceso a este sector donde se encuentran los depósitos es dificultoso, no hay ningún acceso real, debe entenderse que la conexión de los componentes 12 y 13 no es directa, por lo que se piensa que el área de los depósitos sería una ampliación de la PCR la cual habría quedado inconclusa.Discusión:

Discusión:

La mayoría de investigadores coinciden en que las PCR debieron ejercer un papel muy importante en Pachacamac (Bueno, 1974-75, 1979 y 1982; Dolorier 1998, Eeckhout 1995, /2004; Jiménez, 1962-63 y 1985; Jiménez y Bueno 1970; Paredes 1988; Paredes y Franco 1987; Ramos 1999, Shimada, 1991); sin embargo la discusión principal se centra en la funcionalidad de estos edificios y el papel que cumplieron estos edificios dentro del Santuario de Pachacamac.

Lo que es notoria en la propuesta de algunos investigadores (Bueno, 1982; Franco, 1998; Jiménez, 1985; Jiménez y Bueno, 1970; Paredes, 1988; Paredes y Franco 1987; y Ramos, 1999); es que sus interpretaciones se basan en las fuentes etnohistóricas, ésto es recalcado tanto por Eeckhout (1999-2004b), como por Marcone, (2004) y Shimada, (1991). Uno de los primeros que hace mención de esa dificultad es Shimada: quien nota que: “Los hallazgos arqueológicos parecen ser secundarios con respecto a los datos históricos en las interpretaciones …” (traducción del autor) (Shimada, 1991: XLIV).8

Las primeras interpretaciones (Bueno, 1974-75, 1979 y 1982; Jiménez, 1962-63, 1985; Jiménez y Bueno, 1970) han sugerido que las PCR fueron templos provinciales y familiares, los que repetirían con distintas dimensiones el mismo patrón constructivo; además las PCR serían centros cívicos y ceremoniales de grupos étnicos provinciales y de señores, quienes se adhirieron al culto de Pachacamac, al cual estuvieron obligados a servir, ya sea por reciprocidad o como una forma de tributo obligatorio; la orientación del edificio sería incluso una señal de estos grupos étnicos. (Bueno, 1974-75:187; Jiménez Borja, 1962-63 y 1985; Jiménez Borja y Bueno 1970).


Figura 10: Artefactos hallados en la superficie del área del Patio Principal de la Pirámide con Rampa nº 5.. (Foto: Juan Carlos Espejo)

Estos planteamientos son difíciles de comprobar con datos arqueológicos, debido que los indicadores no demuestran si las personas vinculadas a éstas edificaciones pertenecían a distintos grupos étnicos o provinciales. Incluso, si las PCR fueron alojamientos para peregrinos, deberían contener al menos restos de algún material arqueológico procedente de la región de orígen. Por el contrario el material que se encuentra en las edificaciones son locales, se suma a esto por ejemplo que los análisis antropofísicos llevados acabo con los individuos hallados en la PCR nº 3, no revelan ningún rasgo que permita pensar que no fueran autóctonos (Eeckhout, 1999:342-369 y 2003: 17). Se discute el planteamiento sobre la orientación de las edificaciones debería indicar la región de origen de cada edificación (Bueno 1982; Paredes 1988), debido que no hay indicadores suficientes para confirmarlas.

Sería conveniente basarse en otros indicadores, como la comparación con técnicas o materiales constructivos en la arquitectura, para establecer si estas edificaciones pertenecerían realmente a grupos provinciales. Aunque la propuesta de definir a las PCR como templos se basa en la organización espacial de estas edificaciones las cuales tendrían un diseño netamente ceremonial (Bueno 1982; 16-17)

En cuanto a la propuesta de templos, Franco y Paredes (Franco, 1993, 1998 y 2004; Paredes, 1988; Paredes y Franco, 1987) definen el término de “templos embajadas”. Franco señala que las demás edificaciones son construcciones inconclusas que no completaron el modelo de las pirámides nº 1 y 2 (Franco, 2004: 482), él sustenta su propuesta sobre la funcionalidad en base a la crónica del agustino Antonio de la Calancha (1974 [1638] vol. III) para mencionar que las PCR serían templos embajadas, pero para la época en que éste cronista hace mención del Santuario de Pachacamac y de las PCR ya habían pasado mas de un siglo de su abandono y ningún testigo directo del periodo de los incas, y aún mas del periodo anterior, seguiría con vida; lo cual hacer ver claramente Eeckhout (2000: 223). Esto no quiere decir que hay que desestimar el documento de Calancha pero hay que verlo en su contexto real.

Quizás hubiera sido más confiable si esta descripción perteneciera a épocas más cercanas del funcionamiento del santuario. Hernando Pizarro (1968 [1533]) y Miguel de Estete (1968 [1533]) son los primeros cronistas y testigos en visitar el sitio, apreciándolo en su real magnitud pero nunca hacen una mención clara y directa de las PCR. Es conveniente entender que las crónicas pueden tener un cierto grado de validez en cuanto a un acontecimiento, pero esta certeza disminuye en relación al tiempo que ha transcurrido entre el cronista y el hecho que comenta, además de la fuente en que se basa cuando no son testigos presenciales


Figura 11: Cerámica del tipo «Cara Gollete» encontrada en el Patio Principal de la Pirámide con Rampa nº 5.

Franco avanza aun más en este planteamiento, al sustentar su idea de templos embajadas. Él hace mención que el sitio de Armatambo9 tuvo una representatividad importante en el centro ceremonial de Pachacamac y específicamente en la PCR nº 2, basándose en las semejanzas de la arquitectura y el material cerámico, sugiriendo, por lo tanto, que esta pirámide sería la “embajada” de Armatambo (Franco, 2004: 479 y 480). Sin embargo el hecho que en Armatambo se hallan registrado PCR, y la cerámica se asemeje, no serían indicadores suficientes para sustentar tal planteamiento.

En relación a la idea de Franco (2004) que las PCR son construcciones inconclusas las cuales no completaron el modelo de las Pirámides nº 1 y 2, es difícil de argumentar debido que no hay una clara secuencia constructiva para las PCR de Pachacamac, no sabiendo con certeza si estas pirámides (1 y 2) son construcciones tempranas con respecto a otras PCR; además que se ha evidenciado una gran variedad de PCR.10

Otra propuesta, muy interesante, plantea un modelo de sucesión generacional tipo dinástico para las PCR (Eeckhout, 1999a-2004b; Farfán, 2004). En este modelo, las PCR funcionarían como palacios para un curaca o señor, el cual a su muerte es enterrado en la pirámide, que luego es abandonada y en consecuencia se construye otra pirámide por su sucesor en otro lugar (Farfán, 2004: 451 y 452). Esta propuesta, si bien resulta lógica, permitiría explicar como se está dando el crecimiento del Santuario de Pachacamac. Eeckhout menciona que este modelo ha dado muy buenos resultado, al momento de explicar los palacios sucesivos de los emperadores incas en el Cuzco (Cieza; 1973 [1551]), así como la hipótesis para explicar el funcionamiento y el desarrollo de la capital del reino Chimú, Chan-Chan (Kolata, 1980).

Para el caso del reino Chimú y su capital Chan-Chan se argumenta que: “…, el hecho de que estas nuevas ciudadelas pudieran invadir los anexos y cortar las vías de acceso a los conjuntos ya establecidos, sugiere un cambio significativo en el status relativo o en la función cumplida por las ciudadelas más antiguas (…). Al respecto, es importante señalar que el principio de invadir una estructura antigua no se extiende a la misma ciudadela que permaneció inviolada.” (Kolata, 1980: 157)

Los datos que se obtuvieron de las excavaciones en la PCR nº 3,11 apoyarían en parte esta hipótesis, pero su aplicación en las demás PCR y en Pachacamac no es del todo factible, debido a que ninguna de las edificaciones restringe el acceso a otra pirámide, salvo el caso de las PCR 3 y 12 (Fig. 4) que en realidad, para cada caso; se componen de dos pirámides que se están superponiendo.


Figura 12: Cerámica encontrada en el Patio Principal de la Pirámide con Rampa nº 5.

La idea de inviolabilidad no se sustentaría debido que, una vez abandonadas, cuando ya no cumplen las funciones por las que fueron construidas sean templos o palacios, éstas siguen siendo reutilizadas pero con funciones mortuorias, domésticas y de basurales. Esto indica que el modelo de sucesión dinastica no es del todo aplicable para el caso de las PCR en Pachacamac, pero es probable que algunas de las pirámides hayan cumplido funciones residenciales; aunque en la mayoría de estos inmuebles no están habilitados para residencias permanentes, ello se debe que muchas de estas edificaciones están dotadas de almacenes antes que de espacios residenciales (Franco, 2004: 482; Villacorta, 2004: 549).

El dato más sólido de esta propuesta son los materiales encontrados en las excavaciones, los cuales demuestran que las actividades realizadas en los patios y plataformas de las PCR son de tipo doméstico; esto se contrapone a las anteriores propuestas de templos los que evidenciarían en tal caso actividades relacionadas con ofrendas (Eeckhout, 1999b). Para Eeckhout estas edificaciones muestran evidencias de un abandono voluntario.12

Para cada caso de las diversas propuestas sobre la funcionalidad de las PCR, sean estas templos o palacios, cada autor afirma que los materiales hallados en las excavaciones corroboran sus planteamientos (Franco, 1998 y2004; Eeckhout 1999a y 1999b). En ambos casos se sugiere que los datos registrados por la otra propuesta confirmarían los planteamiento de uno; por ejemplo para el caso de los templos se afirma que: “los trabajos de excavación que se realizó en el patio de la Pirámide con Rampa Nº 3 confirmaron que las pirámides tuvieron funciones religiosas; además, que la función del patio sufrió cambios a través del tiempo, tal es así que comenzó con una función ceremonial, para luego pasar a una función funeraria y finalmente concluyó en una función doméstica [Eeckhout: 1995: 10]; cuando ya los Incas habían ocupado Pachacamac.”(Ramos, 1999: 12). Para el caso de la propuesta de palacios se menciona:

“En cualquier caso, el material cerámico asociado con el ultimo piso de la Plaza de la Pirámide II contiene fragmentos de cuencos marrón sobre crema con decoraciones de ranas en bajo relieve así como fragmentos de vasijas cara gollete negro y crema sobre rojo (Franco 1993a:40, 74; Paredes 1988:44), i.e. es exactamente la misma clase de material que fue encontrado en las Plazas I y V de la Pirámide III (ver Eeckhout 1997). Por lo tanto, la evidencia encaja, confirmando el mismo tipo de ocupación y el mismo proceso voluntario de abandono de las dos pirámides.” (Traducción del autor) (Eeckhout, 2000: 235).13 Esto demuestra que los datos obtenidos en las excavaciones en las PCR son similares, pero las interpretaciones no coinciden habiendo una variable en la lectura de los datos que no permitiría su compatibilidad.


Figura 13: Cerámica encontrada en el Patio Principal de la Pirámide con Rampa nº5

Este recuento de los planteamientos sobre la función específica de las PCR, muestran un gran debate en torno a una de las problemáticas que concierne al entendimiento del sitio de Pachacamac y de la Sociedad Ychsma, en el cual se quiere contribuir con algunos aportes, pero para eso es necesario entender los sectores que comprenden al sitio.

Como dijimos el Santuario de Pachacamac estuvo conformado por tres sectores o áreas bien delimitadas por murallas: el primer sector o recinto sagrado delimitado por la primera muralla, donde se encuentran los más importantes templos del santuario (Templo Viejo, Templo Pintado y Templo del Sol); el segundo sector o zona céntrica delimitado por la segunda muralla, donde se ubican la gran mayoría de PCR y otras edificaciones de carácter residencial o depósitos; y el tercer sector delimitado por la tercera y cuarta muralla posiblemente sea el área donde habitaba el pueblo o el común de la gente.


Figura 14: Cerámica encontrada en el Patio Principal de la Pirámide con Rampa nº 5

De acuerdo a lo mencionado se puede pensar que éstas tres áreas cumplían funciones relacionadas con el desarrollo del Santuario. El primer sector cumpliría funciones de carácter netamente religioso y ceremonial; el segundo sector también de carácter ceremonial con funciones administrativas y residencia de la elite; y el tercer sector cumplía probablemente la función de manutención de los dos sectores anteriores, donde se encontraría la fuerza productiva; debido que se han encontrando en la superficie abundante material de talla de piedra de color rosado, las cuales se han encontrado en un recinto cerca a la Plaza de los Peregrinos, y en las base de algunos muros del Acllahuasi; además de batanes y otros artefactos que estarían relacionados a actividades de producción especializada

Esto supondría que la ocupación del sitio seria total y de contemporaneidad; pero hay que tener en cuenta que según los datos de las excavaciones de las PCR éstas no fueron del todo contemporáneas (Eeckhout, 1999b y 2000; Paredes y Franco 1987), es por eso que su crecimiento fue secuencial y algunas PCR fusionaron simultáneamente, esto es más aceptable y acorde con los datos arqueológicos.

Una característica que se menciona sobre Pachacamac y la sociedad Ychsma es su prestigio religioso, pero no es conveniente plantear que este sitio y la sociedad Ychsma hallan sido un estado religioso, esta concepción proviene de los datos etnohistóricos (Rostworowski, 1972 y 1999), que en tal caso tendrían una cierta validez para el periodo mas tardío de su ocupación (Horizonte Tardío).

Es en la época inca en que Pachacamac tiene un gran prestigio como Oráculo, de connotación religiosa, sin precedentes en toda la costa. Pero en épocas previas a la conquista cuzqueña, esta sociedad debió tener otro factor, además del religioso, que permitiera cohesionar y amalgamar a la población, hay que tener en cuenta que esta sociedad estuvo conformada por pequeños señoríos, cada uno con sus propias particularidades pero interrelacionándose entre sí (Cornejo, 2000; Marcone, 2004 y Villacorta, 2004). Es conveniente aclarar para el Período Intermedio Tardío, este culto solo se limitaría a la región o al área en el que se estaría desarrollando la sociedad Ychsma en la costa central (en las zonas bajas y medias de valles del Rímac y de Lurín).

Es en el contexto de cambios culturales importantes, desarrollados en la época denominada Ychsma Tardío, que las PCR de Pachacamac surgen con una funcionalidad, además de ceremonial y administrativo, con funciones de carácter domestica (actividades cotidianas), en el cual el poder descansaba en el control de una parte de la producción y de la fuerza de trabajo de la región, además del control de otros recursos como la pesca y el comercio (Bueno, 1982 y Eeckhout, 2003).

Desde esta perspectiva el funcionamiento del sitio concierne a un conjunto de interrelaciones complejas entre la esfera religiosa, económica y política, tanto a nivel local como regional y tal vez interregional (Eeckhout, 2003: 24).

En relación a las PCR que no se encuentra en el Santuario de Pachacamac (Rímac y Lurín), éstas cumplirían funciones similares, lo que sugeriría un carácter descentralizado del culto y de subordinación a Pachacamac; las diferencias de tamaño responden tanto al manejo de las fuerzas productivas y a la jerarquía de éstas (Bueno, 1982 y Villacorta, 2004).

Cada PCR muestra características particulares14 aunque el material hallado en las excavaciones es semejante, especialmente en el material cerámico, el cual por las últimas secuencias propuestas se definirían como Ychsma Tardío, desarrollado a fines del Periodo Intermedio Tardío (Díaz y Vallejo, 2003; Feltham y Eeckhout, 2004; y Vallejo, 1998 y 2004), lo que descartaría la idea que estos edificios comenzaron a construirse a fines del Horizonte Medio (Dolorier, 1998; y Paredes, 1988), esto es corroborado también por los fechados radiocarbonicos los cuales dan una fecha alrededor de 1350 d.C. – 1470 d.C.,15 es decir previo a la llegada de los Incas a la costa central.

Es más probable que la mayoría de las estructuras que se aprecian en la actualidad en el sitio, hayan sido construidas en un momento previo a la época Inca; esto se deduciría a partir de las excavaciones del Proyecto Arqueológico Pachacamac en la plaza de los Peregrinos (Shimada y et. al, 2004).16

Es conveniente revisar cuando ocurrió el momento del abandono de las PCR si bien las excavaciones y el material de superficie muestran una gran cantidad de basura acumulada asociada a la época Inca, también es factible corroborar que las PCR sufrieron algunos modificaciones durante esta época.


Figura 15: Cerámica encontrada en el Patio Principal de la Pirámide con Rampa nº 5 pertenecientes a la época Inca.

En el caso de la PCR Nº 2, Franco describe que el tipo de material cerámico encontrado antes de la construcción del “Patio Principal”, se caracteriza por un tipo cerámico que él denomina “Ichma negro pulido” el cual está compuestó de cara golletes, formas carenadas y ollas de cuello corto con aplicaciones en el cuerpo de serpiente en relieve.17 Esto muestra que la construcción del patio sería tardía, asociado con las fases Ychsma Tardío. Lo más resaltante es que el material asociado al patio principal es según Franco. “… de fragmentos de cerámica del tipo “Marrón oscuro sobre amarillo pálido” y fragmentos de color negro pulido intenso y algunos fragmentos de vasijas de cuerpo carenado, que corresponde muchas veces a vasijas con la aplicación de sapos escultóricos y cabezas de aves marinas (…). Los mismos tipos de cerámica aparecen en los rellenos constructivos posteriores al primer piso, logrando identificar algunos fragmentos pintados con bandas delgadas unidas en blanco y negro sobre rojizo de cerámica” (Franco 1998: 39)18 .

En el caso de la PCR Nº 3 esta presenta material cerámico similar a la PCR nº 2 el cual Eeckhout lo denomina Lurín Orange, Engobe Rouge, Lurín Brun Lisse, Lurín Nor Poli y Type Oir et Blanc Sur Orange y otros estilos, que estarían asociados al funcionamiento de la pirámide nº 3. (Eeckhout, 1999a: 33 - 75) En una última publicación Feltham y Eeckhout (2004) muestran las revisiones que se hicieron al material de la PCR nº 3 de las temporadas 1999y 2000 manifiestan que en gran medida tienen cerámica asociada al Ychsma Tardío.

Un problema al plantear la continuidad del uso de las PCR en la época Inca es la presencia de una capa de arena en las PCR (2 y 3). Para Franco esta capa es de la época Inca como medida de un abandono forzado por la elite cuzqueña. Pero ¿Porqué los incas se habrían tomado la molestia de cubrir la plaza con una capa de arena limpia para luego arrojar basura? (Eeckhout 1999a-2000). Para Eeckhout dicha capa es evidencia de un abandono voluntario, como forma de clausurar la pirámide, además él establece que la PCR Nº 2 no fue reocupada por los incas, los cuales solo usarían el patio para actividades netamente domésticas (Eeckhout 2000: 234).19 La revición de la discusión al parecer comprobaría que los patios de las PCR estarían siendo reutilizadas en la época inca, manteniendo las mismas actividades que se realizaban antes de esta época20 y no otras áreas del edificio. Sin embargo en las últimas excavaciones de Eeckhout en Pachacamac se evidencian remodelaciones en las plataformas para la época Inca; de acuerdo con la investigación citada: “En efecto en los dos casos (PCR 4 y 5) se comprobó que dichos edificios habían sido parcialmente desmontados y remodelados por los Incas, los cuales sepultaron los tradicionales equipamientos de banquetas y accesos posteriores en la plataforma superior para reemplazarlos por altares con escaleras y hueco central con ofrendas para probables ídolos.”(Eeckhout, 2004a: 407).

La revición de la discusión al parecer comprobaría que los patios de las PCR estarían siendo reutilizadas en la época inca, manteniendo las mismas actividades que se realizaban antes de esta época20 y no otras áreas del edificio. Sin embargo en las últimas excavaciones de Eeckhout en Pachacamac se evidencian remodelaciones en las plataformas para la época Inca; de acuerdo con la investigación citada: “En efecto en los dos casos (PCR 4 y 5) se comprobó que dichos edificios habían sido parcialmente desmontados y remodelados por los Incas, los cuales sepultaron los tradicionales equipamientos de banquetas y accesos posteriores en la plataforma superior para reemplazarlos por altares con escaleras y hueco central con ofrendas para probables ídolos.”(Eeckhout, 2004a: 407).

Además Eeckhout encuentra en otros sitios del valle de Lurín, con PCR (Pampa de las Flores A y Tijerales B), evidencia de material cerámico también Ychsma Tardío (Eeckhout, 1999a: 266 - 303). Para despejar este tipo de dudas sería conveniente corroborar esta propuesta con excavaciones en otras PCR.

Es conveniente mencionar que en el valle del Rímac, en el sitio de Armatambo, se excavó una PCR en el sector de San Pedro (SP1-Ar), por el Proyecto Armatambo, esta edificación tiene como eje principal el Este y se caracteriza porque aprovecha la topografía del terreno, la cima muestra dos momentos constructivos el primero asociado a la PCR y el otro que sella el patio en U, pero ambos serían atribuibles a la época Inca (Díaz, 2004: 580-583).21

La revisión de los materiales hallados en las PCR, demostrarían que estas edificaciones son tardías y probablemente se siguieron usando en los primeros años de la ocupación incaica.

En Pachacamac se menciona que existieron quince complejos piramidales, de los cuales algunos se componen de dos o tres PCR por lo que totalizan veintiún pirámides (Eeckhout, 1999: 91-113 y 2004b), los cuales son diferentes tanto a nivel de la escala monumental como de los componentes arquitectónicos.

Al parecer la distribución espacial de las PCR en el Santuario de Pachacamac está regida por el ordenamiento de sus calles, pero de las quince pirámides descritas por Eeckhout sólo ocho están asociadas directamente al ordenamiento de las calles (Nº 1, Nº 2, Nº 5, Nº 6, Nº 7, Nº 8, Nº 12 y Nº 13) y siete no están alineadas a las calles encontrándose dispersas (Nº 3, Nº 4, Nº 9, N 11, N 14 y Nº 15)22 . También las PCR de Pachacamac presentan variada orientación: seis orientadas hacia el nor.-este (Nº 2, Nº 4, Nº 5, Nº 6, Nº 7 y Nº 15) y cinco hacia el nor.-oeste (Nº 1, Nº 9, Nº 10, Nº, 13 y Nº 14), dos hacia el sur-este (Nº 8 y Nº 11) y dos tiene orientación mixta (Nº 3 y Nº 12) nor.-este y nor.-oeste, esto debido que se componen cada Al parecer la distribución espacial de las PCR en el Santuario de Pachacamac está regida por el ordenamiento de sus calles, pero de las quince pirámides descritas por Eeckhout sólo ocho están asociadas directamente al ordenamiento de las calles (Nº 1, Nº 2, Nº 5, Nº 6, Nº 7, Nº 8, Nº 12 y Nº 13) y siete no están alineadas a las calles encontrándose dispersas (Nº 3, Nº 4, Nº 9, N 11, N 14 y Nº 15)22 . También las PCR de Pachacamac presentan variada orientación: seis orientadas hacia el nor.-este (Nº 2, Nº 4, Nº 5, Nº 6, Nº 7 y Nº 15) y cinco hacia el nor.-una de dos pirámides.


Figura 16: Volumen piramidal de la Pirámide con Rampa nº 5 (Foto: Juan Carlos Espejo)

Dolorier afirma que la orientación junto con la ubicación espacial de las PCR son factores determinantes para establecer una cronología tentativa (Dolorier 1998: 106 y 107). Si bien hay PCR que están dispersas las que probablemente serían las construcciones mas tempranas; la orientación no puede ser tomada como indicador sólido de la temporalidad, debido que no está factible de corroborarse, debido a que la variedad de las PCR son tan numerosas hacen que las secuencias constructivas no sean claras en un contexto amplio del sitio, debido que los componentes arquitectónicos de estas edificaciones no permiten diferenciar a las PCR dispersas de las alineadas por las calles bajo un esquema de organización recurrente, incluso esta variedad se revela claramente en las cuadras (A, B, C y D)23 donde se encuentran ubicadas las PCR.

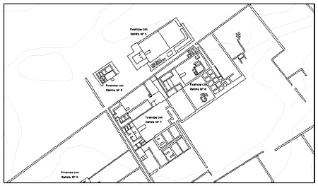
Es por ello que me centraré en el grupo de PCR que se ubican en la periferia norte cerca a la entrada principal de la segunda muralla conformado por las PCR Nº 5, Nº 6, Nº 7, y Nº 8.24 (Fig. 21).


Figura 17: Área de depósitos de la Pirámide con Rampa nº 5 (Foto: Juan Carlos Espejo)

En esta área es posible aclarar de manera tentativa como se construyeron las edificaciones, salvo en el caso de la PCR Nº 4.25 Es probable que la primera PCR en construirse sea la Nº 7; ello se debió a la orientación de su acceso, el cual es hacia el sur, evidenciando una relación mas directa con la zona céntrica o sector II del sitio; posteriormente se construiría la PCR Nº 6, la continuidad y proximidad a la pirámide anterior las relacionan, la diferencia seria el acceso, el cual es hacia el norte, hacia fuera de los límites de la segunda muralla y por ende del sector II lo cual marcarían una relación con el sector III, este edificio sería el punto de partida de la expansión del área monumental de Pachacamac al sector III; posteriormente se construiría la PCR Nº 5, el acceso esta en dirección al mismo pasaje que la pirámide anterior, esta PCR es la evidencia que sustentaría la expansión del área monumental del Santuario de Pachacamac al sector III; probablemente la última PCR en construirse sería Nº 8, esto debido a que no esta bien definida su forma y la escala es menor a las anteriores PCR.

Con respecto a la metodología de estudio de los adobes, Luisa Díaz menciona algunas medidas26 para diferenciar los adobes que representarían al Ychsma Temprano y Medio diferentes de los que conforman al Ychsma Tardío e Inca (Díaz, 2004); la ventaja de Díaz es en el contexto en que encuentran los adobes, el cual se hace evidente mediante la relación de superposición estratigráfica.


Figura 18: Material cerámico de superficie del área de depósitos de la Pirámide con Rampa nº 5. (Foto: Juan Carlos Espejo)

La dificultad en Pachacamac es la gran variedad de medidas de adobes, siendo la gran mayoría de edificaciones correspondientes a la misma época (Ychsma Tardío); se tomaron medidas de diferentes edificaciones en especial de las PCR,27 también de otras edificaciones asociadas a la época Inca,28 registrando alrededor de 800 adobes (Ver cuadro 1 y 2)

Las medidas no sólo evidencian una variada gama de adobes que se diferencian de un edificio a otro sino también en un mismo edificio e incluso en un mismo muro, es mas la variedad de los adobes parecer ser la constante. Esta situación también se repite en la mampostería la cual es mixta, colocándose los adobes tanto de cabeza como soga en el mismo muro e incluso en una misma hilera; con respecto al ancho de la argamasa ésta también es variada.

Se debe señalar sobre la evidencia con respecto a la altura de los adobes en una misma hilera, está siempre tiene un promedio igual y se diferencia del alineamiento superior e inferior, los que también tienen su propia altura promedio Esta variedad en el adobe y la técnica constructiva demostraría que no soló se estaría tributando con producto o recursos sino también en la colaboración de la construcción de la PCR ya sea con materia prima (adobes) y con mano de obra calificada (tipo de aparejo), Alberto Bueno menciona una explicación similar sobre la forma de tributo: “…las etnias de los valles implicados han dependido ceremonial, religiosa y políticamente de Ichimay, ofrendando no solamente especies y productos sino también con trabajo comunal y personal.” (Bueno, 1982: 17); Eeckhout lo entiende de manera distinta: “…podemos considerar que este tipo de organización sugiere la existencia de una cierta forma de jerarquía y de un poder central, susceptible de juntar un gran numero de personas para realización de una tarea comunal.” (Eeckhout, 1999b: 207).


Figura 19 y 20: Cerámica encontrada en el área de los depósitos de la Pirámide con Rampa nº 5

Otro dificultad en la seriación de los adobes es la variedad de técnicas en la construcción de los muros que delimitan los patios un ejemplo es la PCR Nº 3; la cual Eeckhout menciona que estaría abandonada antes de la llegada de los Inca, esto en base a los fechados radiocarbono (Eeckhout, 1999b); la edificación tiene una medida de adobes y una técnica constructiva distinta a las demás PCR. Los adobes miden en promedio de 37,6 cm. de largo, 23,2 cm. de ancho y 14,3 cm. de alto y los muros son construídos con pequeños tramos rectilíneos alrededor de 3 metros en la base y 1 metro en la cabecera de muro, subdivididos en varias partes. (Eeckhout, 1999b: 205-206). Estos datos si los comparamos con los de otras PCR y en especial con la PCR Nº 5, muestran diferencias en los adobes, los que tienen medidas distintas y los muros son construidos con tramos más largos aproximadamente 10 m. o más dependiendo de la longitud del patio y la cantidad de tramos. Es por estas dificultades que la seriación de los adobes es algo complicado de aplicar en el Santuario de Pachacamac. Creo que no sería del todo factible centrarse en un componente arquitectónico, sino de un conjunto de componentes que caracterizan a las edificaciones conocidas como PCR.

Conclusiones:

Por lo expuesto se puede decir que las PCR son construcciones asociadas a las últimas ocupaciones del sitio, esto en base a las evidencias arqueológicas las cuales demuestran que el material cerámico y los fechados de radiocarbono se asocian a la época denominada Ychsma Tardío; es durante esta época que la sociedad Ychsma sufriría cambios de gran envergadura en casi todos sus componentes culturales. Es probable que dentro de estos cambios se esté incorporando la elite que estaría dirigiendo las actividades realizadas en las PCR, las cuales debieron estar vinculadas a una red religiosa del culto al dios Pachacamac, así no solo se beneficiaría de ofrendas sino también de los tributos que estarían vinculados a las actividades de producción y manufacturas de artefactos tales como cerámica, tejidos y otros que están vinculados a actividades cotidianas, los que se encontraron en las excavaciones en los patios de la PCR (Eeckhout, 1999a,/ 2004b; Franco, 1993 y 1998 y Paredes, 1988).

Es en esta situación de cambios que se da la conquista de la zona por los incas, los cuales continuaron con el desarrollo, mediante el intercambio de estilos y técnicas foráneas en los distintos componentes culturales (cerámica, textiles, metales, etc.).

Es por eso que probablemente se siguieran usando y se construyeran algunas PCR en los primeros años de la ocupación cuzqueña, las que sufrieron posteriormente cambios en la función de los patios convirtiéndose en los campamentos de peregrinos tal como menciona Eeckhout (2004a). La evidencia de gran cantidad de basura acumulada en la época Inca, demuestra que las actividades que se realizaban en el Santuario aumentaron debido a las transformaciones vertiginosas del culto al dios Pachacamac por parte de los incas, tomando este culto proporciones interregionales. Este elemento es mencionado por los cronistas (Jerez, 1968 [1534]; Pizarro 1968 [1533] y Calancha 1975 [1638]) y recalcado por los etnohistoriadores (Rostworowski, 1972y 1999 y Espinoza, 1974) y esto se evidencia por la gran cantidad de material arqueológico producto de las actividades que se estarían realizando en el Santuario de Pachacamac.


Figura 21: Área de estudio.

Las circunstancias que permiten explicar porqué el Santuario de Pachacamac acrecienta su fama en el mundo andino como un sitio de peregrinación importante en la época Inca. Esto sería parte de la estrategia de conquista de la zona por parte de los Incas, los cuales querían justificar y legitimar su dominio a través de la ideología y el culto al dios Pachacamac, es por eso que las primeras menciones que se hacen del sitio por los cronistas (Jerez, 1968 [1534] y Calancha 1975 [1638]) resaltan el carácter religioso y las peregrinaciones que realizaba la gente de la costa al Santuario de Pachacamac.

Un caso similar registran de la Vega y Stanish para el caso de Las Islas del Sol y de la Luna en el Lago Titicaca donde sustentan que: “…las peregrinaciones fueron utilizadas como mecanismos ideológicos de control social (…). Para el caso de sociedades complejas mayores como los estados Tiwanaku e Inca, los centros de peregrinación más importantes eran templos y santuarios dedicados a las divinidades. Los ritos y ceremonias que allí se practicaban se orientaban hacia objetivos similares a los que buscaban los señores, pero su interés mayor radicaba en justificar el orden social y político existente como resultado de la voluntad divina, al vincular directamente a los dioses con las elites gobernantes.”(Vega y Stanish, 2003: 271 y 272).

Cabe mencionar que las PCR tienen un fuerte componente ceremonial y están vinculados a actividades de producción especializada, en relación a los fuertes cambios culturales que está sufriendo la sociedad Ychsma y el Santuario de Pachacamac en la época denominada Ychsma Tardío. Esto sería también una de las razones e interés de los Incas en el control del Santuario de Pachacamac. Villacorta recalca un aspecto de las PCR indicando que: “La reproducción o estandarización de los rasgos mínimos de las PCR tienen a nuestro juicio otras connotaciones que estarían relacionadas a funciones de índole religiosa y/o administrativa. … Este diseño favorece a un escenario de ejercicio del poder, remitiéndonos al acto de presenciar/dirigir reuniones en un entorno físico que condiciona y acentúa una relación jerárquica (p.e. arriba y abajo; superioridad e inferioridad; pocos y muchos; etc.) …, los atributos públicos de su diseño y la ausencia de espacios residenciales proponemos que las PCR corresponderían a estructuras eventuales y cíclicas (Villacorta, 2001).…, consideramos que es posible vislumbrar que este modelo arquitectónico representó un escenario social donde los curacas… asumían la dirección de los eventos derivados de las obligaciones que los vinculaban con el santuario de Pachacamac. El rango de obligaciones incluía el cultivo y el procesamiento de los productos agropecuarios así como la elaboración de distintas manufacturas (cerámica, textiles, etc.).” (Villacorta, 2004: 549 y 550).

Si bien se propone de manera tentativa como debió ser la secuencia constructiva de algunas PCR (5, 6, 7, y8) quedan muchas interrogantes por resolver sobre el crecimiento real del santuario y de las otras PCR; la circulación o el tránsito interno del sitio; la función de los espacios amplios y de otras áreas y edificaciones.

Es difícil plantear mediante la seriación de adobes una secuencia constructiva tentativa de las PCR debido a la gran variedad de adobes en las pirámides, esto debe ser cotejado con los datos de las excavaciones en otras PCR, ya sean de Pachacamac o de otro sito que presente este tipo de edificaciones.


Cuadro comparativo: medidas de adobes en las Pirámides con Rampa de Pachacamac. Ver ampliación


Cuadro comparativo: medidas de adobes de otras edificaciones de Pachacamac.

Agradecimientos:

Quiero agradecer en especial a mis padres y hermanos por su apoyo y comprensión; a Marcelo Saco director del Museo de sitio de Pachacamac por permitirme realizar mi investigación; a los compañeros William Tomaylla, Roció Villar y Luís Villegas por su apoyo y colaboración en la recolección de los datos de campo; Alfredo Molina quien colaboro en la digitalización de los mapas y planos; a los investigadores Luisa Díaz y Francisco Vallejo por su motivación para este estudio; al doctor Hernán Amat quien me asesoro en esta investigación y los demás compañeros de estudio y profesores de UNMSM, quienes con sus opiniones, criticas, consejos e ideas me motivaron en la investigación de este trabajo.

NOTAS

1Se han registrado este tipo de edificaciones tanto para la sociedad Chancay (Pisquillo Chico, Lumbra y Lauri) como para la sociedad Ychsma (Huaquerones, Armatambo Parque de las Leyendas, Pampa de las Flores, Tijerales y Pachacamac), pero las mas investigadas son las de esta última sociedad y en especial las de Pachacamac.

2La terminología de Pirámide con Rampa, a pesar de ser la más utilizada, puede no ser la más conveniente para definir este tipo de arquitectura. Es durante la presentación del Bulletin de l’Institut Français d’Etudes Andines, Tomo.33 Nº 3 2004, Peter Kaulicke menciona la necesidad de cambiar el término de Pirámide con Rampa por el de Plataforma con Rampa u otro mas adecuado.

3A partir de la publicación del Coloquio de “Arqueología de la Costa Central del Perú en los Periodos Tardíos” desarrollado en el mes de Mayo del 2004 se acordó homogenizar algunos términos tales como: Ychsma y PCR.

4La nomenclatura de las Pirámides que se usan en este artículo es la propuesta por Eeckhout (1999: 91-113; 2004: 445).

5Alberto Bueno menciona una fecha similar (1300 d.C. – 1470 d.C.) relacionada con el crecimiento de Pachacamac antes de la época Inca (Bueno, 1982).

6Ambas propuestas coinciden en muchos aspectos pero el artículo de Vallejo hace referencia a toda la secuencia Ychsma (Temprano, Medio y Tardío) procedentes de Armatambo y su comparación con otras áreas (Rímac, Lurín, Chilca y Mala) y el artículo de Feltham y Eeckhout se centra en el Ychsma tardío, material procedente de sus excavaciones en la PCR nº 3 de Pachacamac.

7El Ychsma Tardío que propone Vallejo se diferencia de los rasgos que propuso inicialmente Bazan del Campo (1990). Feltham y Eeckhout (2004) se plantean la incógnita si esta fase es fruto de la época Inca o es una evolución previa a la conquista cuzqueña, para Vallejo la fase A seria anterior la conquista cuzqueña y la fase B durante época Inca.

8 «Archeological findings seem to be secondary to historical data in the interpretations…”

9El sitio de Armatambo se encuentra en el valle del Rímac en el distrito de Chorrillos, en la ladea oriental promontorio conocido como Morro Solar, correspondiendo a los periodos Intermedio Tardío e Inca, este sitio sería la ciudad mas importante del Señorío o curacazgo de Sulco o Surco (Bueno, 1978; Díaz, 2004; y Díaz y Vallejo, 2003b).

10La variedad de PCR no solo se hace evidente en el mismo Santuario de Pachacamac y el valle de Lurín si no también en el valle del Rímac (Díaz, 2004, Eeckhout, 1999a y Villacorta 2004).

11“Ahora bien, esta hipótesis tiene que ser contrastada con los datos de campo, (…), resultaría algo arriesgado aplicar estrictamente este modelo a todas las pirámides del sitio hasta que tengamos suficiente evidencia al respecto” Eeckhout 2004b, 437.

12El abandono voluntario se evidencia por una capa de arena limpia encontrada en la PCR nº 2 (Paredes, 1992 y Franco 1998: 42) y nº 3 (Eeckhout 1999a-2000).

13“In any case, the ceramic material associated with the last floor of the Plaza of Pyramid II comprises sherds of Brown-on-Cream bowls, with low-relief decoration of frogs, as well as fragments of Black and Cream on Red face-neck jars [Franco 1993a: 40,74; Paredes 1988:44], i.e., exactly the same kind of material that was found in Plazas I and V of Pyramid III [see Eeckhout 1997]. The evidence therefore fits, confirming the same type of occupation and the same process of voluntary abandonment of the two Pyramids.”).

14Las diferencias son: los materiales usados en la construcción de las PCR (adobe, piedra canteada, adobón), en la distribución de los espacios, la orientación de estas edificaciones, algunas PCR están aprovechando la topografía del terreno para facilitar la construcción del volumen piramidal.

15Los fechados son los obtenidos muestras halladas en las excavaciones de la PCR Nº 2 (Paredes y Regulo 1987: 7) y de la PCR Nº 3 (Eeckhout 1999a - 2000).

16Las excavaciones en la Plaza de los Peregrinos evidencian arquitectura y material cerámico temprano del Periodo Intermedio Tardío.

17Tanto la propuesta de Feltham y Eeckhout (2004) como la de Díaz y Vallejo (2003) mencionan que esa decoración (vasijas con aplicación de serpiente) pertenecería a la época Inca, pero eso no quiere decir que la ocupación previa a la construcción del patio sea Inca sino mas bien que dicha construcción pertenece a la fase tardía.

18Aunque Franco plantea que el grupo cerámico tipo Marrón oscuro sobre amarillo pálido es previo a la época Inca este seguiría produciéndose en dicha época debido que los Incas aprueban y mantienen la producción de este estilo cerámico para los ritos propiciatorios del agua (Franco, 2004: 502).

19Esta conjetura Eeckhout la planteó tiempo antes de reorganizar su material cerámico con Feltham.

20Eeckhout recalca que en las plazas de las PCR se evidencian actividades de carácter cotidiano, esto se contrapone a la propuesta de templos, la cual evidenciaría actividades con ofrendas en el mejor de los casos (Eeckhout 1999a-2003).

21Díaz menciona que los rellenos de arena que se usaron para superponer los recintos al patio en U, estaban en su mayoría limpios, pero que al momento de sellarlos se realizaron algunos tipos de ofrendas. (Díaz, 2004: 581). Esto al parecer apoyaría la explicación de Franco sobre el porque de una capa de arena limpia al momento del abandono de la PCR Nº 2.

22Si bien las PCR Nº 5, Nº 6 y Nº 8 no están asociadas a la calles Norte, Sur, Este y Oeste, están asociadas a lo que Dolorier llama la calle Segunda Muralla (Dolorier, 1998: 109), el caso de la PCR Nº 10 si bien fue destruida en el plano de Uhle (2003[1903]) se aprecia que no se encuentra alineada ninguna calle.

23Uhle, 2003[1903].

24De este grupo se han efectuado pozos de cateo por el Proyecto Ychsma en las PCR Nº 4, Nº 5 y Nº 8 en la temporada del 2004 mencionando que dos de estos edificios (PCR nº 4 y nº 5) habían sufrido algunas remodelaciones en la época Inca. http://www.ulb.ac.be/philo/ychsma/en/home.html

25El patio de la PCR nº 4 no esta bien definido, Eeckhout menciona que los muros del patio probablemente se usaron para la construcción de la calle Norte. (Pagina Web del Proyecto Ychsma).

26Díaz menciona que los adobes Ychsma Temprano y Medio tienen las medidas alrededor de 40 o 45 x 26 o 27 x 8 o10 cm. separados por una argamasa de 15 cm. y losa adobes Ychsma Tardío e Incas es variado pero la altura es entre los 12 y 25 cm. (Díaz, 2004: 579).

27Excepto las PCR 8 y 10 debido que la primera estaba totalmente cubierta de arena y la segunda ya no existe porque fue destruida.

28Los adobes medidos fueron los que se presentaban todos sus lados debido a la dificultad de que no se estaba seguro si se median correctamente el largo el ancho.

Bibliografía

BAZAN DEL CAMPO, Francisco
1990

Arqueología y Etnohistoria de los Periodos Prehispánicos Tardíos de la Costa Central del Perú. Tesis para Optar el Titulo de Licenciado en arqueología, Universidad Nacional Mayor de San Marcos; Lima

BUENO, Alberto
1974-75

Cajamarquilla y Pachacamac: Dos ciudades de la Costa Central del Perú”. XXXIX Congreso Internacional de Americanistas, Lima. En: Boletín Bibliográfico de Antropología Americana. Vol. XXXVII, nº 46 p. 171-211. México.

1978

“Chorrillos Arqueológico”. En: Revista Espacio, nº 3; Lima

1979

“Urbanismo Prehispánico Tardío en Lurín”. En: Inca, segunda época. Revista del Centro de Estudiantes de Arqueología. Vol. III nº 6. UNMSM.

1982

“El Antiguo Valle de Pachacamac: Espacio, Tiempo y Cultura”, Lima: editorial Los Pinos.

CALANCHA, Antonio de la
1974 [1638]

Crónica moralizada. Vol. 3. Colección Crónica del Perú. Editorial: Prado Pastor, Lima.

CIEZA DE LEÓN, Pedro
1973 [1551]

La Crónica del Perú. Edit. Biblioteca Peruana, 262pp. Lima.

CORNEJO, Miguel
2000

"La nación Ischma y la provincia inka de Pachacamac" En: Arqueológicas Nº 24. Museo Nacional de Arqueología e Historia del Perú. Lima.

DÍAZ, Luisa
2004

“Armatambo y la Sociedad Ychsma” En: Bulletin de l'Institut Français d'Etudes Andines, Tomo.33 Nº 3. p 571-594 Lima.

DÍAZ, Luisa y Francisco VALLEJO
2003a

“Hallazgo de pirámides con rampa en Armatambo”. En: Medio de Construcción, nº 175 pp.49-54; Lima.

2003b

“Armatambo y el dominio incaico en el valle de Lima”. En: Boletín de Arqueología PUCPnº 6 p 355-374; Lima.

EECKHOUT, Peter
1995

“Pirámide con Rampa No.3, Pachacamac: Resultados Preliminares de la Primera Temporada de Excavaciones (Zonas 1 & 2)”. En: Bulletin de l'Institut Français d'Etudes Andines. Tomo 24 Nº2: 102-156. Lima.

1999a

“Pachacamac durant l'Intermédiaire récent: Étude d'un site monumental préhispanique de la Côte centrale du Pérou”. En:BAR International Series 747. Oxford.

1999b

"Pirámide con Rampa Nº III, Pachacamac. Nuevos datos, nuevas perspectivas." En: Bulletin de l'Institut Français d'Etudes Andines, Tomo.28 Nº 2. Lima.

1999c

“Las Pirámides con Rampa de Pachacamac”. En: Urpiwachac Revista del Museo de Sitio de Pachacamac, Año nº 1Julio- Agosto pp. 16-30.

2000

“The Palaces of the Lords of Ychsma: An Archaeological Reappraisal of the Function of Pyramids with Ramps at Pachacamac”. En: Revista de Arqueología Americana 17-19: 217-254. Instituto Panamericano de Geografía e Historia, D.F. México.

2003

“Diseño arquitectónico, patrones de ocupación y formas de poder en Pachacamac, Costa central del Perú”. En: Revista Española de Antropología Americana 33 pp 17- 37.

2004a

“La sombra Ychsma. Ensayo introductoria sobre la arqueología de la costa central del Perú en los periodos tardíos” En: Bulletin de l'Institut Français d'Etudes Andines, Tomo.33 Nº 3. p 403-423 Lima.

2004b

“Pachacamac y el proyecto Ychsma (1999-2003)” En: Bulletin de l'Institut Français d'Etudes Andines, Tomo.33 Nº 3. p 425-448 Lima.

ESPINOZA S., Waldemar
1974

“El Templo Solar de Paramonga y Los Acuarios de Pachacamac”. En: Bulletin de l'Institut Français d'Etudes Andines. 3(3): 1-22. Lima.

ESTETE, Miguel de
1968 [1533]

“Noticia del Perú”. En: Biblioteca peruana: primera serie. Tomo I. p 347-402. Lima: Editores técnicos asociados. ETA.

FARFÁN, Carlos
2004

“Aspectos simbólicos de las pirámides con rampa. Ensayo interpretativo” En: Bulletin de l'Institut Français d'Etudes Andines, Tomo.33 Nº 3. p 449-464 Lima.

FELTHAM, Jane P y Peter Eeckhout
2004

“Hacia una definición del estilo Ychsma: aportes preliminares sobre la ceramica Ychsma tardia de la pirámide III de Pachacamac”. En: Bulletin de l'Institut Français d'Etudes Andines, Tomo.33 Nº 3. p 643-679 Lima.

FRANCO J., Regulo G.
1993

Excavaciones en la Pirámide con Rampa n 2, Pachacamac. Tesis de Licenciatura. Lima: Universidad Nacional Mayor de San Marcos.

1998

La Pirámide con Rampa No. 2 de Pachacamac: Excavaciones y Nuevas Interpretaciones. Trujillo.

2004

“Poder religioso, crisis y prosperidad en Pachacamac: del Horizonte Medio al Intermedio Tardío” En: Bulletin de l'Institut Français d'Etudes Andines, Tomo.33 Nº 3. p 465-506 Lima.

JEREZ, Francisco
1968 [1534]

“Verdadera relación de la conquista del Perú y provincia del Cuzco llamada La Nueva Castilla conquistada por Francisco Pizarro....". En: Biblioteca peruana: primera serie. Tomo I p 193-272. Lima: Editores técnicos asociados. ETA.

JIMENEZ BORJA, Arturo
1962-63

“El Conjunto de Pachacamac” En: Informe sobre los sitios Arqueológicos de Lima, p 27 – 32. Junta Deliberante.

1985

“Pachacamac”.En: Boletín de Lima 7(38): 40-54.

JIMENEZ BORJA, Arturo y Alberto Bueno
1970

”Breve notas acerca de Pachacamac” En: Arqueología y Sociedad, nº 4, p 13-25. Museo de Arqueología y Etnología de la UNMSM. Lima.

KOLATA; Alan Louis
1980

“ChanChan: Crecimiento de una cuidad antigua”. En: Chan-Chan: metrópoli Chimú, editor Rogger Ravines. Edit IEP p. 130-154:

MUELLE, Jorge C. y Robert WELLS
1939

“Las Pinturas del Templo de Pachacamac”. En: Revista del Museo Nacional, Tomo VIII: 275-282.

PAREDES, Ponciano
1988

“Pachacamac - Pirámide con Rampa No. 2”. En: Boletín de Lima, No. 55: pp. 41-58.

PAREDES, Ponciano y Regulo FRANCO
1987

“Pachacamac: Las Pirámides con Rampa, Cronología y Función”. En: Gaceta Arqueológica Andina 4(13): 5-7.

PIZARRO, Hernando
1968 [1533]

“Carta de Hernando Pizarro a los magníficos señores, los señores oidores de la audiencia real de su majestad, que residen en la ciudad de Santo Domingo". En Biblioteca peruana: primera serie. Tomo I. p 119-130. Lima: Editores técnicos asociados. ETA.

RAMOS G., Jesús
1999

“Religión y culto a los muertos en Pachacamac”. En: Urpiwachac Revista del Museo de Sitio de Pachacamac, Año nº 1Julio- Agosto pp. 11-15.

RAVINES, Rogger
n.d.

Pachacamac: Santuario Universal. Editorial Los Pinos E.I.R.L., Lima.

ROSTWOROWSKI, María
1972

“Breve Informe sobre el Señorio de Ychma o Ychima”.En: Arqueología PUC, No. 13:37-51. Instituto Riva-Agüero, Pontificia Universidad Católica del Perú, Lima.

1999

El Señorío de Pachacamac: El Informe de Rodrigo Cantos de Andrade de 1573. Instituto de Estudios Peruanos, Lima.

SHIMADA, Izumi
1991

Pachacamac Archaeology: Retrospect and Prospect. En Pachacamac. A Reprint of the 1903. Edition by Max Uhle. University of Pennsylvania Press.

SHIMADA, Izumi, Rafael SEGURA, María ROSTWOROWSKYi y Hirokatsu WATANABE
2004

“Una nueva revaluacion de la Plaza de los Peregrinos de Pachacamac: aportes de la primera campaña 2003 del Proyecto Arqueologico Pachacamac” En: Bulletin de l'Institut Français d'Etudes Andines, Tomo.33 Nº 3. p 507-538 Lima.

UHLE, Max
2003[1903]

Pachacamac: Informe de la expedición peruana William Pepper de 1896. Traducción de Manuel Beltroy Vera. 1º Edición: Fondo Editorial UNMSM y COFIDE.

VALLEJO, Francisco
1998

"Secuencia cronológica en base a la cerámica Ichma" En: Separata del Primer Coloquio de Arqueología del Valle del Rímac durante el Período Intermedio Tardío. INC - Museo de Puruchuco. Lima.

2004

“El estilo Ychsma: Caracteristicas Generales, secuencia y distribución Geografica”. En: Bulletin de l'Institut Français d'Etudes Andines, Tomo.33 Nº 3. p 595- 642, Lima.

VILLACORTA, Luís Felipe
2004

“Los Palacios en la Costa Central durante los periodos Tardíos: de Pachacamac al Inca” En: Bulletin de l'Institut Français d'Etudes Andines, Tomo.33 Nº 3. p 539- 570 Lima.

Hosted by www.Geocities.ws

1